找回密码
 立即注册

QQ登录

只需一步,快速开始

工控课堂 首页 工控文库 电工电气 查看内容

为什么要做防雷接地?机房、监控、布线项目如何做防雷...

2022-2-28 21:02| 发布者: 198366809| 查看: 1630| 评论: 10|原作者: 198366809

摘要: 关于防雷接地,一直是电气人的重点与难点,也有朋友问到,为什么要做防雷接地?哪些项目需要做防雷? 基本上电气设备都要做接地的,这里通过一个视频防雷前后对比,我们一起来了解建筑、项目防雷接地的重要性。防雷 ...
关于防雷接地,一直是电气人的重点与难点,也有朋友问到,为什么要做防雷接地?哪些项目需要做防雷?

基本上电气设备都要做接地的,这里通过一个视频防雷前后对比,我们一起来了解建筑、项目防雷接地的重要性。防雷设备接地主是要雷电过电流过大,多个重复接地体起到分流,和防止地位反击的效果。
在弱电行业有不少项目需要做防雷接地,其中最常见的就是机房、监控、线路工程等项目的防雷接地,下面我们来总结这三种防雷接地做法。

一、机房项目如何做防雷接地?
所谓接地,即把电路中的某一金属壳与大地边接在一起,形成电气回路。目的是为了让电流易于流如入大地,对人及设备形成保护

1、接地的方法:
直流地悬浮法即直流地不接大地,与地严格绝缘;
直流地接地法,把计算机等设备中数字电路等的电位点地和网络。
无论采用何种形式,均须有接地母线,接地地杖,在此特别强调建议采用接地埋接地网络板,能更好的引导至大地,接地时应注意如下问题:
Ø 尽量不要在机房内把直流地和交流工作地短路或混接;
Ø 不允许交流线路与直流地线平行敷设,以防止干扰或短接;
Ø 直流地线网应装接在地板下,便于边接,即可减小接地电阻,便于泄流。

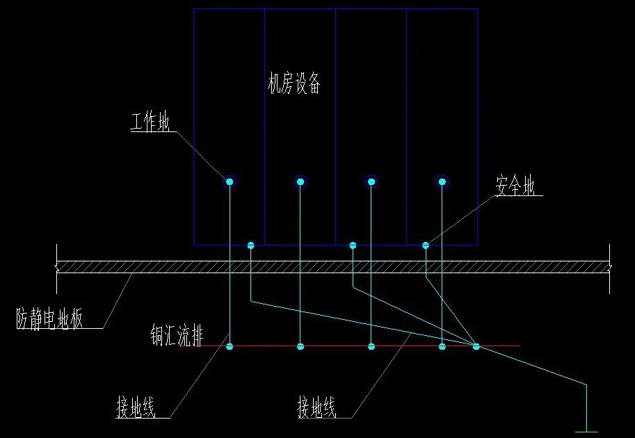
2、接地铜排
室内机房接地采用30*5(宽*厚,单位mm)规格之铜片,围绕机房墙壁一周离地面10cm高,且与室外接地体母线相连接。在铜片每隔50 cm钻一小孔,以利于分布在机房各区域的设备进行接地。


3、接地铜板
接地铜板采用宽60mm(厚10mm)之L型铜板固定于楼板,此铜墙铁壁板作为所有应与机房接地之设施的总接地。

4、地网
机房有架设高架地板,则应以2.5mm之多芯裸铜线缠绵高架地板柱做地网。

5、安防接地电阻
安全保护接地、直流工作接地、防雷接地分设时,接地电阻值应符合以下规定:
①安全保护接地,接地电阻不应>10Ω;
②直流工作接地,接地电阻不应>4Ω;
③防雷接地,接地电阻不应>10Ω。
采用角钢50×50×5mm,长1.5m~2.5m;角钢与角钢的连接用扁钢,间隔≥4~5m,角钢≥40×4mm;引线采用50mm2多股铜芯绝缘线或按设计规定;引线与扁钢连接采用焊接,焊接点需进行防腐处理;


二、监控项目如何做防雷接地?
端设备防雷
1、前端设备如摄像头应置于接闪器(避雷针或其它接闪导体)有效保护范围之内。当摄像机独立架设时,避雷针最好距摄像机 3-4 米的距离。如有困难避雷针也可以架设在摄像机的支撑杆上,引下线可直接利用金属杆本身或选用Φ8 的镀锌圆钢。为防止电磁感应,沿杆引上摄像机的电源线和信号线应穿金属管屏蔽。

2、为防止雷电波沿线路侵入前端设备,应在设备前的每条线路上加装合适的避雷器,如电源线(AC220V 或 DC12V)、网线控制线、开关线。

3、摄像机的电源一般使用AC220V 或 DC12V。摄像机由直流变压器供电的,单相电源避雷器应串联或并联在直流变压器前端,如直流电源传输距离大于 15 米,则摄像机端还应串接低压直流避雷器。

4、 室外的前端设备应有良好的接地,接地电阻小于4Ω,高土壤电阻率地区可放宽至 <10Ω。

整体设备防雷接地结构如下两张图:




三、传输线缆如何做防雷接地?
1、、传输部分的线路在城市郊区、乡村敷设时,可采用埋地敷设方式。当条件不充许时,可采用通信管道或架空方式,此时规定了传输线缆与其它线路其沟的最小间距和与其它线路共杆架设的最小垂直间距。

2、 从防雷角看,埋地敷设方式防雷效果最佳,架空线最容易遭受雷击,并且破坏性大,波及范围广,为避免首尾端设备损坏,架空线传输时应在每一电杆上做接地处理,架空线缆的吊线和架空线缆线路中的金属管道均应接地。

3、传输线埋地敷设并不能阻止雷击设备的发生,大量的事实显示,雷击造成埋地线缆故障,大约占总故障的 30%左右,即使雷击比较远的地方,也仍然会有部分雷电流流入电缆。所以采用带屏蔽层的线缆或线缆穿钢管埋地敷设,保持钢管的电气连通。
对防护电磁干扰和电磁感应非常有效,这主要是由于金属管的屏蔽作用和雷电流的集肤效应。如电缆全程穿金属管有困难时,可在电缆进入终端和前端设备前穿金属管埋地引入,但埋地长度不得小于 15 米,在入户端将电缆金属外皮、钢管同防雷接地装置相连。


3581681e8f8541fbbb666e730a9e45d9.jpg
关注公众号,加入500人微信群,下载100G免费资料!
发表评论

最新评论

引用 xutongji 2025-11-16 06:41
不请自来,就想夸一句:太顶了!
引用 lan123ping 2025-11-16 06:56
楼主太会说了,字字句句都在理~
引用 ysh1027 2025-11-16 07:59
赞同 + 10086,完全说出了我的想法!
引用 leiiel 2025-11-16 11:28
水个经验,楼主加油,支持你~
引用 旧少年 2025-11-16 15:40
求个链接 / 教程,楼主好人一生平安~
引用 次江 2025-11-16 21:13
画面感太强了,仿佛身临其境!
引用 2422634140 2025-11-16 21:17
原来还有这种操作,长见识了!
引用 郭靖 2025-11-16 21:18
打卡路过,支持优质原创内容~
引用 shawnn 2025-11-16 21:19
这波反向操作,我属实没想到!
引用 Fabulous 2025-11-16 21:22
浅评一下:内容优质,值得推荐~

查看全部评论(10)

热门文章
关闭

站长推荐上一条 /1 下一条

QQ|手机版|免责声明|本站介绍|工控课堂 ( 沪ICP备20008691号-1 )

GMT+8, 2025-12-22 18:47 , Processed in 0.092702 second(s), 30 queries .

Powered by Discuz! X3.5

© 2001-2025 Discuz! Team.

返回顶部